
home . rental . bach . lifestyle
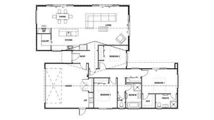
Juliet
184m2

The Juliet kitset home will definitely stand out on your street with its symmetrical twin gable roof line and flawless design. It has an open plan living area, which leads perfectly to a private outdoor area for all to enjoy.
The Juliet includes three bedrooms and two bathrooms, with the master bedroom boasting a walk-in wardrobe and ensuite. It also includes a double garage, kitchen with butler's pantry and convenient study nook.

Floor Area: 184m2
Overall Length: 18.5m
Overall Width: 13.6m
Pricing
KITSET
We supply the design, spec and the materials and you co-ordinate the build.
$165,795*
+ Support Packages (Optional) - Learn More
*Price excludes GST and is based on our standard kitset specification. Price may alter due to material price fluctuations. Price based on high wind zone only. Price does not include kitset transport costs. All images are artist impression only.










